Ginginup
- 4
- 2
- 2
- 26m
- 262m2
From $1107 / Week*
Ginginup
An Idyllic Picture-Perfect Countryside Awaits
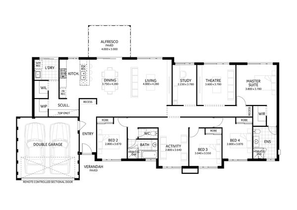
This farmhouse design boasts 4 bedrooms, 2 bathrooms, a home theatre, activity room, and a study. Nothing has been overlooked in the Ferguson Valley. As you make your way past the long entry hallway, you’ll wind around to an expansive open living area which overlooks the outdoor alfresco for perfect views. All the minor bedrooms share a zone at the front of the home, with views to the streetscape. The kitchen and scullery provide plenty of space to cook up a storm.
Dont Delay, Land Selling Fast
FLOORPLAN
- Block Width: 26m
- House Area: 208.59m2
- Total Area: 262m2
FEATURES
- activity
- alfresco
- master suite
- built in robes
- home theatre
- theatre
- scullery
Make this House & Land package yours
INCLUSIONS
- Choice of four stylish elevations
- Modern 970mm wide entry door*
- 20mm solid composite surface benchtops to kitchen
- Luxury Westinghouse 900mm kitchen appliances
- Hobless showers with framed pivot screens to ensuite and bathroom
- Choice of black, chrome or brushed nickel mixer taps in kitchen, bathroom and laundry
- Double bowl overmount kitchen sink with gooseneck mixer
- Soft close doors and drawers throughout
- All cabinet work throughout your home is custom made to measure
- Laminated cabinetry with inset trough to laundry
- 300mm x 300mm ceramic floor tiles & 300mm x 300mm or 400mm x 200mm ceramic wall tiles to wet areas
- Bypass sliding robes to minor bedrooms
- R4 ceiling insulation to house (and garage where required)
- 3kw solar with single phase inverter
- Low-E glazing (as required)
- All site cleans, bins and concrete pumps costs are included (subject to site conditions)
Location
LIKE WHAT YOU SEE?
Whether you’re looking to browse our range of beautiful home designs, view our inspirational display homes, or build a custom home, contact us today and discover WA Country Builders’ better building experience.
Disclaimer
Should the above package advertise a weekly amount payable, loan amounts are based on a Finance 365 Pty Ltd lender of Finsure Finance and Insurance Pty Ltd with interest rate of 6.14% and comparison rate of 6.15% and 52 weekly repayments over annual loan repayments, repayable over 30 years. Home loan is based off 90% of the package price, deposit required of 10% (excluding fees). Interest Rates as advertised are current of 14/05/2025 and subject to change based on lender discretion. Finance 365 Australian Credit License 384704
Site works allowances have been included in the advertised price. Pictures are for illustration purposes only. The land in this package is not owned by WA Country Builders and is available for purchase directly from the Developer, Agent or Seller. Land is subject to being available at the time of enquiry, as is any promotions offered by the Developer and/or Builder. Pricing is subject to change pending survey and engineers report. Design amendments and or upgrades and pricing are subject to a Bushfire Attack Level Assessment. BC #11422.


























