Viewtop Vista
- 4
- 2
- 2
- 10m
- 267m2
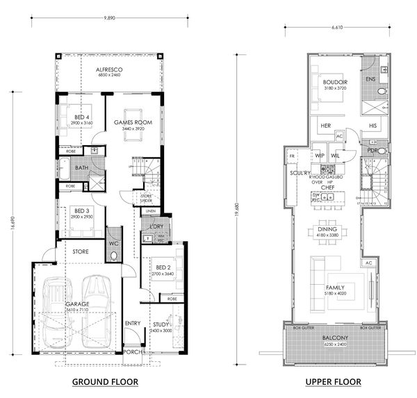
Reverse living design with unique upper floor living areas
It’s time to maximise your view. So, grab your popcorn (or kale chips if you fancy) and soak in the view like a boss. Who needs front-row seats when you’ve got the whole show right at your doorstep?
Clever design meets common sense in this upside-down home. Why wouldn’t you design all the large open plan living areas to sit upstairs, ready to take in the views by leading on to huge alfresco style balcony? We couldn’t think of a better home to flip the script and offer truly modern design.
So, the master suite is found at the rear of upper floor, making it very private, very quiet. At the front of the upper level sits the large family kitchen and dining areas, merging seamlessly with the alfresco.
That leaves the kids to enjoy the ground floor to themselves with three large bedrooms + study + games room and double alfresco. Meet together for family time in these spaces, or enjoy time in peace. This is a modern family home bursting with style.
FLOORPLAN
- Block Width: 10m
- Total Area: 267m2
FEATURES
- upstairs master
- upstairs living
- air conditioning
- alfresco
- study
- balcony
- master suite
- built in robes
- scullery
Make Viewtop Vista yours
INCLUSIONS
- Solar power system
- Lifetime structural warranty
- 900mm Westinghouse oven and hotplate
- Soft closing cabinetry doors and drawers
- Vitrum surfaces by Qstone, crystalline silica free solid composite benchtops to the Kitchen, Ensuite and Bathroom
- Hobless showers with semi frameless pivot door
- Mitred tiling with $50/sqm allowance
- Extensive choice of quality Vito Bertoni tapware
- Back to wall toilet suites
- Continuous flow Hot Water System
Explore our Pinnacle specification
We've partnered with quality suppliers to create our Pinnacle Specification.
Live with attitude
Imagine a building company — actually, any company — that just gets you. One who knows what makes you tick, what gets you out of bed each morning and what pulls you back home each night. One that takes all that interesting information and gives it back to you in the form of a home that wasn’t just built for your block, but for your life. Every last, stylish, savvy and sometimes messy inch of it. Welcome to Residential Attitudes!
latest offers
The Express Series
Embark on an adventure like no other with WA Country Builders’ Express Series of home designs, inspired by the iconic routes and legendary train journeys that traverse Australia.
Ready, Set, Home
Your new home is closer than you think!
Ready, Set, Home gives you a faster, easier way to build with everything included and nothing left to worry about.
But hurry, opportunities like this don’t stick around for long.
The Aspire Range
Aspire to living life to the fullest! Featuring 12 new home designs, all with Plunkett Homes’ timeless aesthetic, plus all the inclusions.*
LIKE WHAT YOU SEE?
Whether you’re looking to browse our range of beautiful home designs, view our inspirational display homes, or build a custom home, contact us today and discover WA Country Builders’ better building experience.
Disclaimer
*Please note: Images are for illustrative purposes only. Inclusions and elevations may slightly vary between models.
Images and floorplans are for illustrative purposes only and are subject to change without notice. Pricing is subject to change pending survey and engineers report. Please speak to your New Home Consultant for design amendments and or upgrades. BC #11422.



























