Still Disco
- 3
- 2
- 2
- 10m
- 164m2
Groovy living in a compact space!
A great value, compact design to suit your smaller block. Don’t compromise on space and keep the vibe alive.
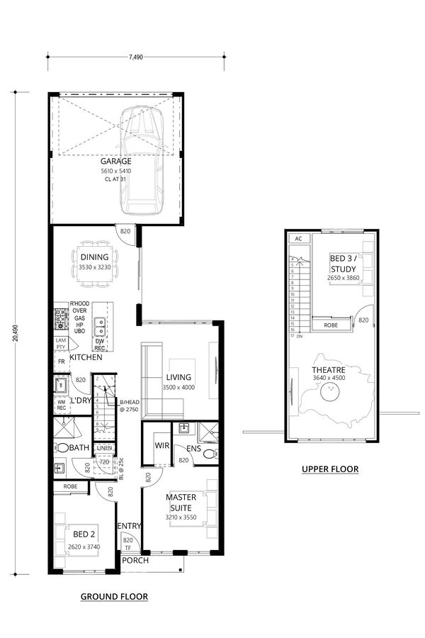
On the ground floor you’ll find the open plan, primary living space, all leading out to a lush garden, and a rear double garage. At the front of the home, you’ll find the Master Suite, with access to the front porch, and a private ensuite plus walk-in robe. A second spacious bedroom is found across the hall, perfect as a nursery or children’s bedroom, right next to mum and dad.
The upper floor maximises space with private theatre and additional study or third bedroom if you require.
In a world where bigger isn’t always better, this home shines like a glitter ball on a Saturday night. Let’s groove!
FLOORPLAN
- Block Width: 10m
- Total Area: 164m2
FEATURES
- study
- master suite
- home theatre
- theatre
Make Still Disco yours
INCLUSIONS
- Solar power system
- Lifetime structural warranty
- 900mm Westinghouse oven and hotplate
- Soft closing cabinetry doors and drawers
- Vitrum surfaces by Qstone, crystalline silica free solid composite benchtops to the Kitchen, Ensuite and Bathroom
- Hobless showers with semi frameless pivot door
- Mitred tiling with $50/sqm allowance
- Extensive choice of quality Vito Bertoni tapware
- Back to wall toilet suites
- Continuous flow Hot Water System
Explore our Pinnacle specification
We've partnered with quality suppliers to create our Pinnacle Specification.
Live with attitude
Imagine a building company — actually, any company — that just gets you. One who knows what makes you tick, what gets you out of bed each morning and what pulls you back home each night. One that takes all that interesting information and gives it back to you in the form of a home that wasn’t just built for your block, but for your life. Every last, stylish, savvy and sometimes messy inch of it. Welcome to Residential Attitudes!
latest offers
The Express Series
Embark on an adventure like no other with WA Country Builders’ Express Series of home designs, inspired by the iconic routes and legendary train journeys that traverse Australia.
Ready, Set, Home
Your new home is closer than you think!
Ready, Set, Home gives you a faster, easier way to build with everything included and nothing left to worry about.
But hurry, opportunities like this don’t stick around for long.
Super Charged
Build a selected home with us and receive a powerful 6kW 3-phase solar system, for free! PLUS, we’ll include either a:
- 5kW solar battery (valued at $5,000)
- OR a kitchen upgrade package (with more than $7,500 worth of upgrades)
LIKE WHAT YOU SEE?
Whether you’re looking to browse our range of beautiful home designs, view our inspirational display homes, or build a custom home, contact us today and discover WA Country Builders’ better building experience.
Disclaimer
Images and floorplans are for illustrative purposes only and are subject to change without notice. Pricing is subject to change pending survey and engineers report. Please speak to your New Home Consultant for design amendments and or upgrades. BC #11422.



























