Radical Candor
- 3
- 2
- 2
- 10m
- 205m2
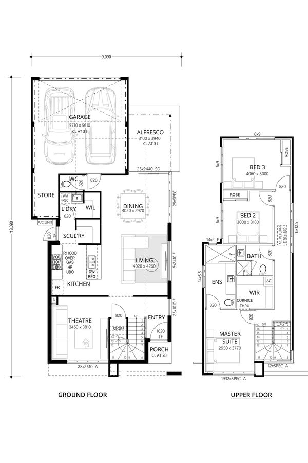
An open, breezy family home for odd lots
You know what’s really radical? A floorplan that lets you enjoy a full-size family home on a smaller, rear-loaded or corner block.
Downstairs is for living – upstairs is for dreaming! At least, that’s what we think when we see Radical Candor. Behind its clean, modern elevation reveals an alfresco area, dining and living areas, kitchen with scullery and a home theatre on the ground floor. Upstairs, sweet dreams abound with two bedrooms, bathroom and master plus ensuite.
If you’re tired of being told ‘no’ to having a full-size family home on your smaller lot, then it’s time for some Radical Candor!
FLOORPLAN
- Block Width: 10m
- Total Area: 205m2
FEATURES
- upstairs master
- air conditioning
- alfresco
- master suite
- built in robes
- home theatre
- corner lot
- scullery
Make Radical Candor yours
INCLUSIONS
- Solar power system
- Lifetime structural warranty
- 900mm Westinghouse oven and hotplate
- Soft closing cabinetry doors and drawers
- Vitrum surfaces by Qstone, crystalline silica free solid composite benchtops to the Kitchen, Ensuite and Bathroom
- Hobless showers with semi frameless pivot door
- Mitred tiling with $50/sqm allowance
- Extensive choice of quality Vito Bertoni tapware
- Back to wall toilet suites
- Continuous flow Hot Water System
Explore our Pinnacle specification
We've partnered with quality suppliers to create our Pinnacle Specification.
Live with attitude
Imagine a building company — actually, any company — that just gets you. One who knows what makes you tick, what gets you out of bed each morning and what pulls you back home each night. One that takes all that interesting information and gives it back to you in the form of a home that wasn’t just built for your block, but for your life. Every last, stylish, savvy and sometimes messy inch of it. Welcome to Residential Attitudes!
latest offers
The Express Series
Embark on an adventure like no other with WA Country Builders’ Express Series of home designs, inspired by the iconic routes and legendary train journeys that traverse Australia.
The Aspire Range
Aspire to living life to the fullest! Featuring 12 new home designs, all with Plunkett Homes’ timeless aesthetic, plus all the inclusions.*
LIKE WHAT YOU SEE?
Whether you’re looking to browse our range of beautiful home designs, view our inspirational display homes, or build a custom home, contact us today and discover WA Country Builders’ better building experience.
Disclaimer
Images and floorplans are for illustrative purposes only and are subject to change without notice. Pricing is subject to change pending survey and engineers report. Please speak to your New Home Consultant for design amendments and or upgrades. BC #11422.


























