Content Creator
- 4
- 2
- 2
- 12.5m
- 270m2
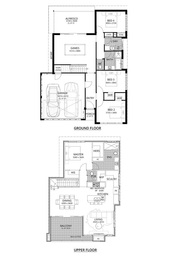
Why live right-side up when you can live life upside down!
Imagine this: A stunning balcony with enough room to seat up to 12 guests at a lavish dining table. Yes, you heard that right – you’re about to become the ultimate host, dazzling your friends and family with unforgettable gatherings!
This home design offers a canvas for creating your own unique lifestyle. With the living areas on the top floor flipped upside down, you’ll unlock a panorama of breathtaking views from the front of your property. It’s a vantage point that’ll leave you in awe every single day. An ocean or river view from your kitchen always improves the experience of making breakfast for the kids.
Now, let’s talk about luxury. Your private, rear upper-floor master suite awaits, complete with separate ‘his and her’ walk-in robes. It’s a retreat that exudes opulence and indulgence.
As for the kids, they’ve got their own haven on the ground floor – spacious bedrooms and a colossal games room leading to an alfresco wonderland.
And the cherry on top? A central staircase connecting both floors, seamlessly uniting your living spaces. It’s an architectural marvel that keeps your family close and connected.
FLOORPLAN
- Block Width: 12.5m
- Total Area: 270m2
FEATURES
- upstairs master
- upstairs living
- activity
- entertainment
- alfresco
- balcony
- master suite
- built in robes
- butlers pantry
- scullery
- free form living
- front loaded
Make Content Creator yours
INCLUSIONS
- Solar power system
- Lifetime structural warranty
- 900mm Westinghouse oven and hotplate
- Soft closing cabinetry doors and drawers
- Vitrum surfaces by Qstone, crystalline silica free solid composite benchtops to the Kitchen, Ensuite and Bathroom
- Hobless showers with semi frameless pivot door
- Mitred tiling with $50/sqm allowance
- Extensive choice of quality Vito Bertoni tapware
- Back to wall toilet suites
- Continuous flow Hot Water System
Explore our Pinnacle specification
We've partnered with quality suppliers to create our Pinnacle Specification.
Live with attitude
Imagine a building company — actually, any company — that just gets you. One who knows what makes you tick, what gets you out of bed each morning and what pulls you back home each night. One that takes all that interesting information and gives it back to you in the form of a home that wasn’t just built for your block, but for your life. Every last, stylish, savvy and sometimes messy inch of it. Welcome to Residential Attitudes!
latest offers
The Express Series
Discover a collection of thoughtfully designed homes that bring together beautiful design and a smoother building experience. The Express Series offers smart, well-considered designs with quality inclusions and a clearer path to your new home.
The Aspire Range
Aspire to living life to the fullest! Featuring 12 new home designs, all with Plunkett Homes’ timeless aesthetic, plus all the inclusions.*
LIKE WHAT YOU SEE?
Whether you’re looking to browse our range of beautiful home designs, view our inspirational display homes, or build a custom home, contact us today and discover WA Country Builders’ better building experience.
Disclaimer
Images and floorplans are for illustrative purposes only and are subject to change without notice. Pricing is subject to change pending survey and engineers report. Please speak to your New Home Consultant for design amendments and or upgrades. BC #11422.


























